Guten Tag,
vielen Dank an die Mods für die Aufnahme, ich hoffe auf Informationsaustausch mit den Mitgliedern.
Wir planen gerade den Innenausbau unserer neuen Büroflächen und stehen vor dem Problem Anschluß f90 Trockenbauwand an das Trapezblech. Es betrifft die Hamburger Bauordnung.
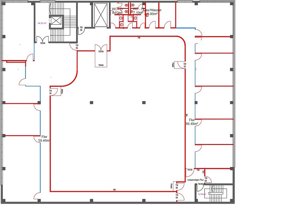
Die Fläche ist quadratisch und hat mittig eine Lagerfläche von ca 450m². Um das Lager herum an den Außenwänden sind Büros, Sanitäranlagen etc geplant. Die Lagerwände sollen der f90 Anforderung gerecht werden, bisher hatten wir mit Trockenbauwänden kalkuliert.
Nach langem Prüfen der Dachdetails uns der Generalunternehmer zwei Möglichkeiten aufgezeigt, um dem Brandschutzkonzept gerecht zu werden. Leider beide mit hohen Mehrkosten.
- Zum einen eine Porenbetonwand in Verbindung mit einer Doppel T Stahlumfassungszarge. Dieses Vorhaben steigert unsere Kosten um ca 25% . Der Statiker hat hierzu sein Go gegeben. Es erfolgt kein direkter Anschluss an das Trapezblech, sondern die Sicken werden an den entsprechenden Stellen mit Mineralwolle ausgefüllt.
- Zum anderen mit der Trockenbauwand, da aber die Trockenbauwände keinen Anschluss an das Trapezblech haben dürfen, müsste das Trapezblech von innen mit entsprechenden Platten ausgestattet werden (sonst würden die Wände einfach umfallen im Brandfall). Das muss laut Brandschutzsachverständiger über die gesamte Fläche (ca 1100m²) erfolgen. Lediglich um die Mauern im Lager herum reiche nicht aus. Hier lägen die Mehrkosten bei 40% um die ganze Fläche damit auszustatten.
Wir brachten die Idee, die Trockenbauwände mit zusätzlichen Stützen zu sichern, ein damit diese im Brandfall nicht einfach umfallen. Es gäbe so keinen Anschluss an das Trapezblech, zwischen Trapezblech und Trockenbauwand wäre dann Mineralwolle. Eine Sonderabnahme durch die Behörde wäre notwendig gewesen. Laut Statiker sei das auch nicht möglich.
Da die Mehrkosten deutlich ins Gewicht fallen, suchen wir nach weiteren Möglichkeiten, um ein festes Mauerwerk bzw. die Deckenauskleidung mit f90 Platten zu vermeiden. Vielleicht kennt einer hier im Forum eine Lösung oder hatte mal das gleiche Problem, wie man f90 Trockenbauwände alleinstehend bauen kann. Eventuell mit irgendwelchen zusätzlichen Balken/Stützen etc.
Ein Raum in Raum Konzept ist leider nicht möglich, da wir OBerlichter haben und Deckenstrahlplatten als Heizung.
Danke für Ihre Mühe. Den Grundriss habe ich hinzugefüht.
f90 Trockenbauwand alleinstehend
-
Mas123
f90 Trockenbauwand alleinstehend
- Dateianhänge
-
- Plan.jpg (87.49 KiB) 19701 mal betrachtet
Re: f90 Trockenbauwand alleinstehend
Guten Tag,
Bauteile mit Feuerwiderstand müssen an Bauteile mit dem gleichen Feuerwiderstand anschließen. Insofern macht eine "freistehende" F90-Wand keinen Sinn und daher ist mir auch keine Lösung bekannt.
Wie F90-Trockenbauwände gebaut werden finden Sie in DIN 4102-4 oder bei den einschlägigen Herstellern. Die haben auch Fachberater, die Ihnen gerne helfen.
Gruß
C. Lammer
Bauteile mit Feuerwiderstand müssen an Bauteile mit dem gleichen Feuerwiderstand anschließen. Insofern macht eine "freistehende" F90-Wand keinen Sinn und daher ist mir auch keine Lösung bekannt.
Wie F90-Trockenbauwände gebaut werden finden Sie in DIN 4102-4 oder bei den einschlägigen Herstellern. Die haben auch Fachberater, die Ihnen gerne helfen.
Gruß
C. Lammer