Brandschutz Mensa / Fluchtwege

LBO, MBO u. andere Bauvorschriften, Feuerschutzabschlüsse, Flucht- und Rettungswege etc.
Antworten
AlexD1979

Brandschutz Mensa / Fluchtwege

Beitrag von AlexD1979 »

Hallo,
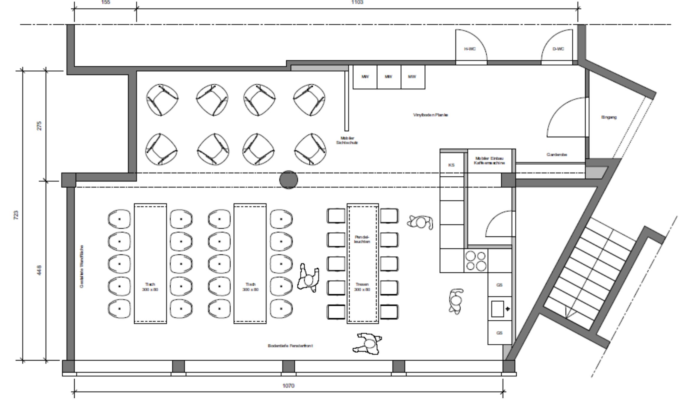
Wir planen derzeit eine Nutzungsänderung der Räumlichkeiten im Erdgeschoss. Aus ehemaligen Büros soll eine Mensa werden, wo Mitarbeiter ihre Mittagsverpflegung einnehmen können. Die Sitzplätze sind für bis zu 40 Mitarbeiter ausgelegt.
In den Raum führt nur eine einzige Tür, FH90, vor der Tür ist eine Verengung bedingt durch das Treppenhaus für das 6 Geschossige Bürogebäude. Die Verengung misst an der schmalsten Stelle 85cm, das liegt meines Wissens weit unter den ASR geforderten 1,20m für bis zu 200 Personen. Die Mensa soll mit 8 Mikrowellen, 2 Backöfen und Herden sowie KAffeemaschine und Geschirrspüler ausgestattet werden.
Die Mensa hat rings rum Fenster mit Brüstung, es ist also kein weiterer Rettungsweg momentan vorhanden.

Meine Frage, kann eine Nutzungsänderung unter diesen Bedingungen überhaupt erfolgen? Welche Brandschutzmaßnahmen sollten ergriffen werden? Aus meiner Sicht als BSB würde ich 2 Löschdecken, 1 CO2 und 1 Schaumlöscher vorsehen. Branddetektion ist nicht vorgesehen.

Viele Grüße
Alex
Dateianhänge
Rechts in der Zeichnung ist der Ausgang mit nach innen aufschlagender Tür und die Verengung.
Rechts in der Zeichnung ist der Ausgang mit nach innen aufschlagender Tür und die Verengung.
grundriss_eg.JPG (223.48 KiB) 16388 mal betrachtet
Feuerteufel

Re: Brandschutz Mensa / Fluchtwege

Beitrag von Feuerteufel »

Vorsicht bei den Löschdecken. Auch wenn, bis auf Gloria, alle anderen Unternehmen sich zurückhalten, sind fast alle Löschdecken für Fettbrände nicht mehr zugelassen. Den Löschdecken wurde von der europäischen Prüfstelle die Zulassung aberkannt. Es besteht Lebensgefahr bei Fettbränden. Also besser Fettbrandlöscher verwenden.

Gruß

Feuerteufel
Antworten